Hétfő: 10.00 - 12.00 és 13.00 - 16.00
Kedd: 10.00 - 12.00 és 13.00 - 16.00
Szerda 10.00 - 12.00 és 13.00 - 16.00
Csütörtök: 10.00 - 12.00 és 13.00 - 16.00
Péntek: 10.00 - 12.00 és 13.00 - 16.00
Szombat: Zárva
Vasárnap: Zárva

Hajdúszoboszló Eladó Lakás Bajcsy Zsilinszky utca
CSOK PLUSZ FIX 3%

Hajdúszoboszló - Eladó Lakás

Elhelyezkedés
Bajcsy Zsilinszky utca
Alapterület
63 m2
Ár
93.000.000 Ft
Hirdetés azonosító
HS260302/3

Exkluzív új építésű otthon saját telekkel – Hajdúszoboszlón

Leírás

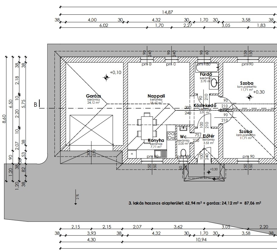
Hajdúszoboszló központjában, egy csendes, nyugodt utcában kínálunk megvételre egy új építésű modern sorházi lakást, amely egy kis lakásszámú, igényes kivitelezésű épületben található.

Az ingatlan 87,06 m² hasznos alapterülettel rendelkezik, amelyből 62,94 m² kényelmes lakótér, átgondolt alaprajzzal és világos, élhető terekkel.

Az otthon kialakítása:
tágas, napfényes amerikai konyhás nappali
2 külön nyíló hálószoba
külön fürdőszoba és WC
saját tágas garázs
nagy méretű, privát kert, amely tökéletes helyszín pihenésre, családi programokra vagy egy hangulatos terasz kialakítására

Modern műszaki tartalom:
energiatakarékos hőszivattyús fűtési rendszer
saját split klíma
saját vízóra
230 V elektromos hálózat
csendes udvari kilátás

A földszintes kialakításnak köszönhetően az ingatlan praktikus, kényelmes és jól élhető, miközben a korszerű technológiai megoldások biztosítják az alacsony fenntartási költségeket és a modern életkomfortot.

Az elhelyezkedés különleges előny: Hajdúszoboszló központja néhány perc alatt elérhető, mégis egy nyugodt, családbarát környezetben található az otthon.

Stílus, kényelem és értékállóság egy helyen – ideális választás saját otthonnak vagy prémium befektetésnek.

További információért és megtekintésért keressen bizalommal!

Az ingatlan elhelyezkedése

Kapcsolati adatok

Debrecen és Vidéke Ingatlan- és Hiteliroda

Debrecen és Vidéke Ingatlan- és Hiteliroda

+36-70-3 383 508

devingbt@gmail.com

Érdeklődjön az ingatlanról, e-mailben!

Hasonló ingatlanok

Hívás